Urbanismo

Intervención en el palacio renacentista

Uno de los objetivos principales es la recuperación de la fachada, patio y caja de escaleras.

Las restauración de la fachada conlleva la recuperación de la distribución de vanos en tres plantas eliminando las entreplantas que se habían ido añadiendo, de igual forma recibe un tratamiento especial el imponente alero de madera y el gran arco de acceso al zaguán.

El patio, como ya se ha comentado, había sufrido un deterioro notable tras su derrumbe parcial y se optó por su restauración por anastilosis2. Así ahora el visitante puede disfrutar de las seis columnas anilladas con capitel jónico en la planta baja y de las arquerías de medio punto sobre esbeltas columnillas de orden también jónico de la primera planta; las enjutas e intradoses de estas arquerías aparecen profusamente decorados con relieves en yeso de personajes, máscaras, guirnaldas y motivos vegetales todos diferentes entre si.

Desde el patio, elemento distribuidor, se accede a las salas de exposiciones de la planta baja, y por la escalera monumental, también recuperada, a la zona de atención al público y consulta de fondos.

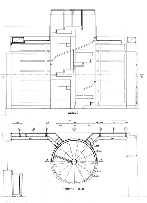
La sala noble del palacio renacentista se rehabilita como un espacio para el público, con dos alturas conectadas por una escalera de caracol. En la parte inferior, las mesas de consulta y la colección de libre acceso de la bibliteca y de la hemeroteca, la parte superior para la consulta de microfilms.

Aunque el patio solo cuenta con dos alturas (baja y primera), el palacio tiene una segunda planta donde se ubican salas de trabajo interno y uso administrativo.

En esta zona de atención al público encontramos una dotación mobiliario especifico…

(2) Reconstrucción de unas ruinas a partir del estudio sistemático y riguroso de los restos encontrados y conservados.