El Ayuntamiento de Zaragoza promoverá un edificio de 34 viviendas de alquiler asequible con servicios comunitarios en Torrero
El proyecto está valorado en unos 5 millones de euros y el consistorio em-prenderá ahora su proceso administrativo para ceder a Zaragoza Vivienda la parcela municipal donde se levantará el edificio, entre la avenida de América y la plaza de la Memoria Histórica
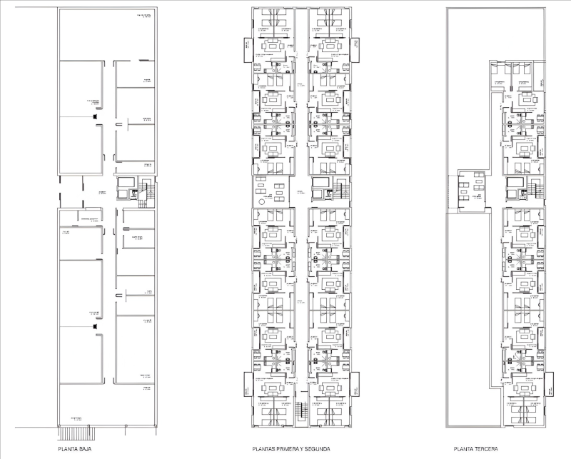
El inmueble se diseñará con una planta baja en la que haya espacios abiertos al barrio y a su tejido social y vecinal para reuniones y actividades
Cuerpo de la noticia
El Ayuntamiento de Zaragoza va a impulsar en Torrero la construcción de un edificio de alojamiento comunitario que constará de 34 viviendas destinadas al alquiler asequible. Así lo ha detallado esta mañana la alcaldesa de Zaragoza, Natalia Chueca, quien ha recordado que "este barrio tiene un alta demanda de alojamiento a precios adecuados para la población más vulnerable, con alto porcentaje de población mayor y abundantes viviendas con problemas de accesibilidad, por lo que la población destinataria es amplia".
Por ello, el Ayuntamiento de Zaragoza pone en marcha el proceso de tramitación administrativa para poder ceder la parcela de propiedad municipal a Zaragoza Vivienda que está situada entre la avenida de América y la plaza de la Memoria Histórica. Se trata de un terreno de espacio libre, equipamientos y servicios, con una superficie de 1.000 m² y una capacidad edificable de 3.000 m². El objetivo es impulsar este proyecto que tendrá un presupuesto cercano a los 5 millones de euros, y para el que ya se cuenta con dotación económica mediante plurianuales, si bien se estudiarán otras fórmulas para obtener subvenciones.
El inmueble, que será rectangular y con 4 plantas (baja más tres alturas), tendrá su planta baja abierta hacia la plaza de la Memoria Histórica y se quedará en semisótano respecto de la avenida de América. Este tipo de proyectos se pueden dotar de distintas zonas comunes destinadas a la actividad física y social, aulas polivalentes y otros tipos de instalaciones que se concretarán más adelante. Por otra parte, en las otras 3 plantas alzadas, se distribuirán los 34 alojamientos de uno o dos dormitorios, con medidas entre 44 y 61 m².
Este modelo se adapta al ciclo vital, es intergeneracional y se basa en la planificación de los técnicos de Zaragoza Vivienda, que indican que la tipología más adecuada para estas viviendas dotacionales serían pisos pequeños, de 1 o 2 dormitorios, si bien también sería interesante incluir en menor número alguna vivienda más grande, ya que algunas familias vulnerables pueden beneficiarse de un alojamiento con servicios comunes de forma temporal. Este formato es el más adecuado dado que, según el Censo de Población y Vivienda 2021, el tipo más frecuente de hogar en España es el formado por 2 personas (28%), pero el hogar unipersonal ha aumentado más de un 19% en los últimos 10 años, especialmente los formados por personas mayores de 65 años, y principalmente mujeres.
Además, el proyecto "incluirá espacios comunes que darán servicio a los residentes en el edificio y a las necesidades globales de esta zona, creando una mejora de la convivencia en el barrio", ha indicado Chueca, quien ha matizado que "la definición exacta de los servicios deberá concretarse en colaboración con los agentes sociales de la zona, a través de un proceso participativo, y donde tendrán un principal protagonismo la Junta de Distrito de Torrero, los servicios sociales municipales, así como otras asociaciones y entidades sociales con especial presencia en la zona".
Entre los principales servicios de las zonas comunes que se plantean en un principio, se valoran espacios para reuniones y programación de actividades que fomenten el cono-cimiento mutuo y la adecuada convivencia (charlas, talleres…); un espacio de estudio y formación en cuestiones informáticas, uso de aplicaciones de cita previa, gestión de mensaje-rías móviles, etc; o un espacio dedicado a la creatividad y a las actividades artísticas de diverso ámbito.
Actualmente, Zaragoza Vivienda está trabajando en la redacción del proyecto básico que permita iniciar el expediente de licitación y obra, con el objetivo de poder integrar procesos de construcción industrializados que faciliten cumplimiento de plazo y con-tención del precio, en un momento de inflación de la construcción tradicional.

UN MODELO DE ÉXITO
El proyecto de Torrero sigue la senda marcada por el Edificio Ricardo Millán en Las Fuentes, situado en la calle de Fray Luis Urbano e inaugurado en 2022 con 80 viviendas gestionadas por Zaragoza Vivienda. Se trata de un formato que ha obtenido grandes reconocimientos como la mención especial por su accesibilidad en la XXVIII edición de los Premios de Arquitectura Fernando García Mercadal, el Premio AVS 2023 a la mejor iniciativa de innovación social, el Premio Rebuild al mejor proyecto de sostenibilidad o descarbonización o mayor auto generación de energía en un edificio, y el Premio Aldes al mejor proyecto de sostenibilidad o descarbonización en los galardones The Advanced Architecture Awards 2023.
De las 80 viviendas, unas 26 viviendas se destinan a estancias de colectivos vulnerables (discapacidad, refugiados, mujeres con hijos), gestionadas por entidades sociales seleccionadas por el Área de Políticas Sociales: ADISLAF, ATADES, Disminuidos Físicos de Aragón, Fundación Luis de Azúa, OZANAM e YMCA. Además, se cuenta con la colaboración de la Fundación El Tranvía, con gran arraigo en el distrito de Las Fuentes, para la búsqueda de personas mayores de 65 años propietarias con necesidad de cambiar su vivienda por una más accesible, por lo que entran a vivir en este inmueble a cambio de ceder sus pisos al pro-grama municipal de alquiler asequible vivienda ALZA.
Estas 80 viviendas también se diseñaron con 1 y 2 dormitorios, y en cada planta se reservan espacios multiusos para su utilización por los residentes, que los destinan a ludoteca, aulas de informática o actividades artísticas.
Más Noticias
-
27 febrero 2026 » Bryan Adams vuelve a España con su gira "Roll with the punches 2026"