La Cincomarzada regresa al Tío Jorge con espacios acotados tras el parón por la pandemia
Más de 30 colectivos y entidades participarán en esta fiesta, situándose como en ediciones anteriores en el pasillo central
El consumo de bebidas y alimentación sólo estará permitido en tres zonas valladas, que contarán con control de acceso La marcha reivindicativa partirá de las puertas del Consistorio a las 11 horas
Cuerpo de la noticia
La celebración de la Cincomarzada regresa al parque Tío Jorge tras el parón de la pandemia, en una edición similar a la de años anteriores que contará con la participación de 33 entidades y colectivos, y una programación de actividades para todos los públicos.
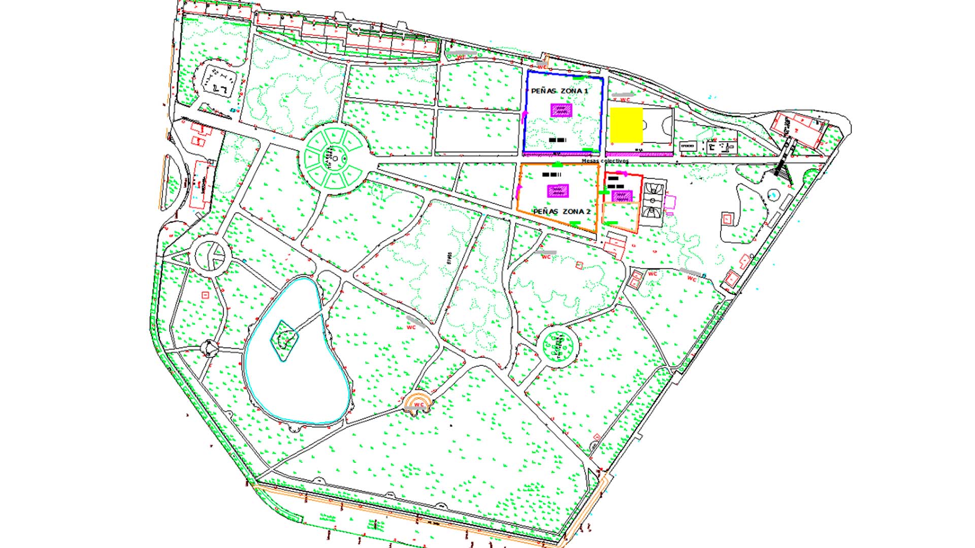
La fiesta cumplirá con las restricciones de las autoridades sanitarias, que de momento prohíben comer en la calle, por lo que habrá tres espacios debidamente perimetrados con servicio de hostelería y barras.
Uno de ellos, ubicado junto al campo de fútbol, estará gestionado por la Federación de Asociaciones de Barrios de Zaragoza (FABZ) con un aforo de 300 personas, mientras que los otros dos estarán reservados a Interpeñas y a la Unión Peñista con espacio para 500 asistentes cada uno. Todos dispondrán de un control de acceso y fuera de ellos no estará permitido el consumo de bebidas y alimentos.
El consejero de Participación y Relación con los Ciudadanos, Javier Rodrigo, acompañado por el vicepresidente de la Federación Aragonesa de Barrios de Zaragoza (FABZ), Rafael Tejedor, han presentado este jueves el desarrollo de esta fiesta reivindicativa, que conmemora la victoria de los zaragozanos frente a las tropas carlistas.
La tradicional celebración fue recuperada por el primer Ayuntamiento de la democracia y desde entonces la FABZ ha contado con la colaboración de Área de Participación y de la Sociedad Municipal Zaragoza Cultural para su organización.

Los servicios municipales, como Policía Local, Bomberos, así como la Cruz Roja garantizarán el correcto desarrollo de la fiesta, y el Servicio de Limpieza actuará en el parque una vez concluida la celebración. ‘Recuperemos la fiesta, recuperemos la ciudad’ es el lema elegido para esta edición con el que se quiere resaltar “la necesidad de esa recuperación rápida, tanto en lo social como en lo económico”.
“Queremos transmitir también la vitalidad y la alegría que tenemos por poder realizar actos lúdicos y culturales al aire libre”, indican desde la FABZ.
La tradicional marcha de los barrios dará comienzo a la Cincomarzada. Este pasacalles, animado por los cabezudos de los barrios y música popular, saldrá de las puertas del Consistorio a las 11.00 horas hacia el Parque Tío Jorge, pasando por el Puente de Piedra y la calle Sixto Celorrio.
A la llegada al parque, las asociaciones vecinales leerán el manifiesto y entregarán las reivindicaciones de los barrios al consejero de Participación, Javier Rodrigo. Como en anteriores ediciones, en el pasillo central se colocarán los puestos informativos de las asociaciones y colectivos desde las 10.00 horas hasta las 18.30, y durante la jornada se sucederán charangas, actuaciones musicales o actividades para los más pequeños.
A mediodía, y en el escenario principal, tendrá lugar la actuación ‘CountryMarzada’ a cargo de Lola Mississippi y Country Line Zaragoza.
La música continuará por la tarde con el concierto Arrabal Big Band y Mambo Party hasta las 18.30, hora en la que está prevista que finalice la celebración. La charanga Detroit amenizará los caminos del parque a la hora de comer. Además del escenario principal, que se ubicará en la pista de baloncesto, la Cincomarzada contará también con programación infantil en la azotea del centro cívico Tío Jorge.
Con aforo para 250 personas, se celebrará el taller Ambulante de Inventos al Instante a las 12.00 horas.
El uso de la mascarilla será obligatorio para participar en las actividades y entrar en los espacios vallados, y los responsables de la FABZ estarán identificados para coordinar el desarrollo de la fiesta.
Por último, desde la FABZ, agradecen la contribución del Ayuntamiento para asegurar el éxito de la celebración, al tiempo que piden a los zaragozanos/as que visiten el Parque Tío Jorge y cumplan con la normativa sanitaria, que sólo permite el consumo de bebidas y comida en las zonas hosteleras acotadas.

Refuerzo de transporte público y limpieza
Con motivo de la festividad, este sábado se reforzarán los servicios de transporte público, tanto de autobús como de tranvía. De esta forma, las líneas 26 y 29 dispondrán de dos vehículos más en servicio en horario de 10.00 a 14.00 horas, y durante toda la jornada, las circulares Ci1 y Ci2 prestarán servicio con autobuses articulados con mayor capacidad. Respecto al tranvía, se incluirán refuerzos superiores a los de otros años, ya que se ampliará -como el autobús- sobre los servicios habituales de un sábado, no de un festivo.
Por la mañana, durante las horas principales de la celebración, las frecuencias serán de entre 9 y 11 minutos. Por la tarde el servicio se ampliará aún más, con la introducción de 3 unidades dobles que, junto a otras 9 simples, ofrecerán una frecuencia de paso de entre 7 y 9 minutos hasta las 22,00 horas.
El Servicio de Parques, Jardines e Infraestructuras Verdes ha dado ya instrucciones a la contrata para llevar a cabo, antes del sábado, el repaso y limpieza de las zonas de uso, así como una revisión completa del arbolado del parque y la poda de aquellas ramas que se considere necesario eliminar.
Para la limpieza se instalarán contenedores en número y distribución similar a ediciones anteriores. Está previsto instalar más de 40 de 1.000 litros cada uno y otros 6 contenedores de 8 metros cúbicos de capacidad.
También se ha realizado la revisión y puesta en marcha de todas las fuentes de agua potable existentes en el parque. Asimismo, serán instalados, en este caso por el Servicio de Limpieza y Gestión de Residuos, unos 20 contenedores (tanto de basura general como de reciclaje) en los accesos y proximidades del Parque Tío Jorge.
Desde este jueves ya se están llevando los trabajos habituales de limpieza en el entorno, eliminación de grafitis, etcétera. Se contará para ello con distintas brigadas específicas y la colaboración del SERLUZ (Servicio de Limpieza Urgente de Zaragoza). Como es habitual, desde primera hora del domingo, se realizará una limpieza a fondo del parque y sus alrededores. No obstante, desde los servicios de mantenimiento se insiste en solicitar a los participantes en la celebración un uso respetuoso de todas las instalaciones y utilizar los contenedores para depositar los residuos que se generen, limitando así posibles daños.
Programación de la Cincomarzada
MARCHA DE LOS BARRIOS 11 HORAS. Marcha de los barrios. Salida de Plaza del Pilar con cabezudos de los barrios de Zaragoza acompañados de las collas gaiteras “Gaiteros del Rabal” y “Bucardos”. Recorrido: Plaza del Pilar, Puente de Piedra, Sixto Celorrio, Plaza San Gregorio a Parque del Tío Jorge.
14’15-16 HORAS. Charanga Detroit recorriendo las calles y caminos del Parque del Tío Jorge amenizando la comida.
ZONA INFANTIL. CENTRO CIVICO TIO JORGE. TERRAZA. AFORO 250 PERSONAS Espectáculo infantil: TALLER AMBULANTE DE INVENTOS AL INSTANTE 12-13 horas. Espectáculo infantil ESCENARIO PRINCIPAL. CANCHA BALONCESTO PARQUE TIO JORGE
12’00.- Lectura del manifiesto de la Cincomarzada y entrega reivindicaciones de los barrios.
12’30-14 horas. COUNTRYMARZADA a cargo de Lola Mississippi y Country Line Zaragoza 16-17 horas.
Concierto ARRABAL BIG BAND. 17-18’30.- Concierto MAMBO PARTY.
18’30.- FIN DE LA FIESTA.
Más Noticias
-
27 febrero 2026 » Bryan Adams vuelve a España con su gira "Roll with the punches 2026"