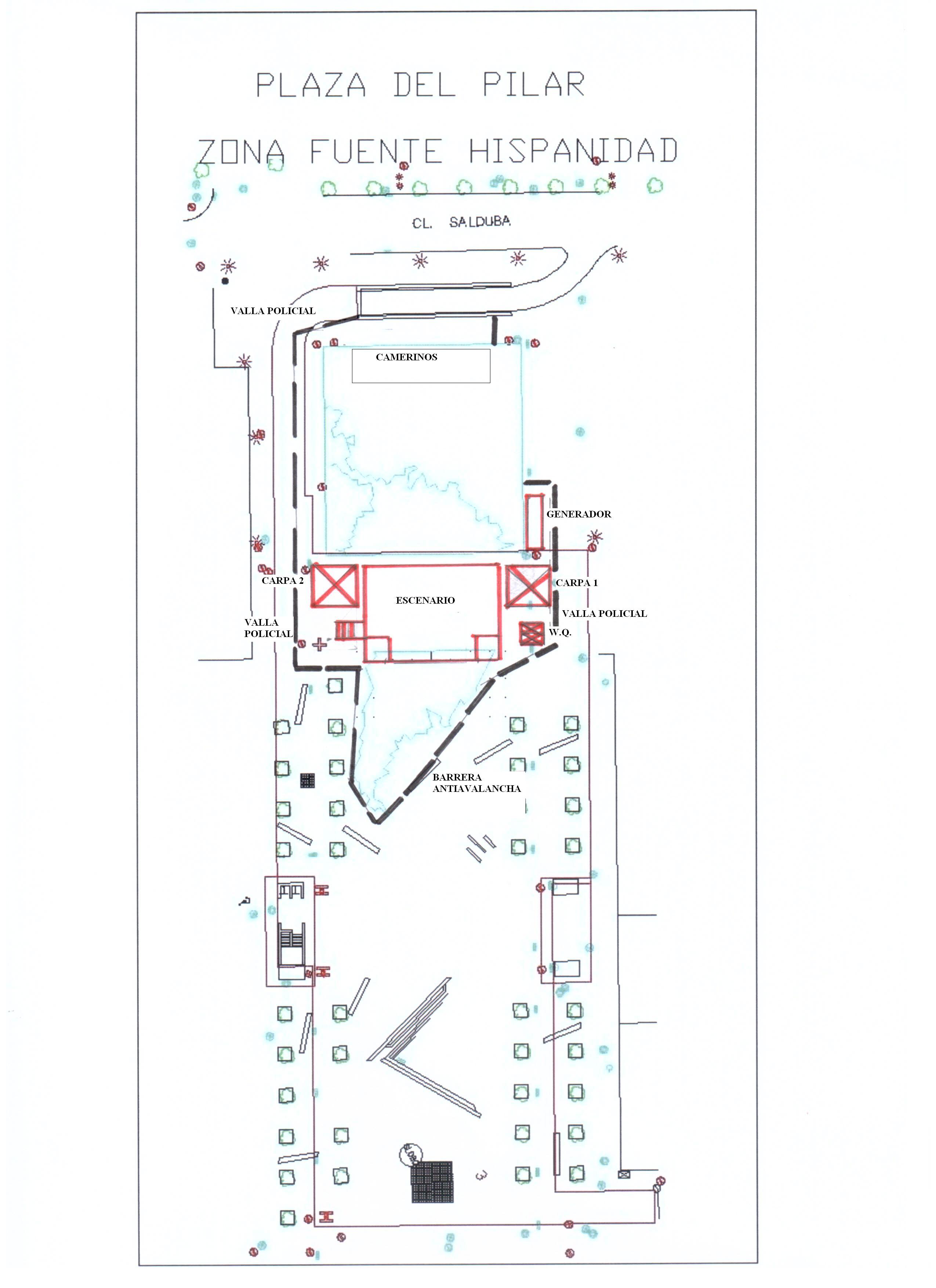
null - EQUIPO DE SONIDO, ILUMINACIÓN, ESCENARIO Y BARRERA ANTIAVALANCHA A INSTALAR EN PLAZA DEL PILAR FUENTE DE HISPANIDAD, PARA LAS ACTIVIDADES A REALIZAR DURANTE LAS FIESTAS DEL PILAR 2013
Este servicio ha sido mejorado dentro del Proyecto Europeo NextProcurement
Contratacion pública fue parte del proyecto They Buy For You.
El Proyecto They Buy For You fue un proyecto de tres años de duración financiado por la Comisión Europea bajo el marco Horizon 2020 Nº de Concesión: 780247